Le migliori pratiche: Progettazione per la foratura CNC
Sfruttate al meglio la foratura CNC. Questa guida vi aiuterà a migliorare i progetti.
La precisione è fondamentale nella produzione.
Una delle operazioni più comuni, Lavorazione richiede un'attenta progettazione per garantire precisione ed efficienza. In questo articolo esploreremo i suggerimenti essenziali per la progettazione della foratura CNC che possono contribuire a massimizzare l'efficienza, la qualità e l'affidabilità del processo di foratura. L'alesatura è un'operazione di finitura utilizzata per migliorare la precisione e la scorrevolezza dei fori preforati.
La qualità dei fori è fondamentale nella foratura CNC, in quanto fattori quali la scelta del materiale per la foratura, la rigidità dell'utensile e l'uso di sistemi di raffreddamento influenzano direttamente la precisione e la finitura dei fori eseguiti.
L'alesatura amplia la foratura allargando i fori esistenti a un diametro specifico con una maggiore precisione. La svasatura crea un foro conico per consentire alle teste delle viti di posizionarsi a filo con la superficie del pezzo. Questi sono esempi di processi di lavorazione utilizzati insieme alla foratura CNC per ottenere le caratteristiche desiderate del pezzo.
Attenendosi a queste linee guida, è possibile garantire operazioni senza intoppi, evitare potenziali problemi e ottenere i risultati desiderati nei progetti di foratura CNC.
Che cos'è la foratura CNC?
La foratura CNC, acronimo di Computer Numerical Control drilling, è un processo meccanico che utilizza macchinari automatizzati per creare con precisione fori nei pezzi da lavorare. L'utensile da taglio, in genere una punta da trapano rotante, rimuove il materiale per creare fori nel pezzo fermo. Le macchine di perforazione sono programmate per seguire istruzioni specifiche, guidando le punte a penetrare nel materiale in posizioni, profondità e angoli precisi.
La foratura CNC automatizza il processo di foratura utilizzando un codice programmato per dettare i movimenti della punta. La foratura a punti è la fase iniziale di molti processi di foratura CNC e crea una guida per le operazioni di foratura successive. Le punte centrali sono utilizzate per iniziare i fori e garantire la precisione per le operazioni di foratura più profonde, contribuendo a ottenere tolleranze ristrette e una foratura precisa.
Per ottimizzare il processo di foratura CNC, i progettisti devono considerare diversi fattori come le superfici di ingresso e di uscita della foratura, la rettilineità del foro, il gioco del truciolo, il design del prodotto filettato, la forma del foro e il layout generale del pezzo.
La velocità del mandrino, la velocità di avanzamento e la durezza del materiale influenzano direttamente la durata e l'usura degli utensili e la qualità dei fori eseguiti. Ognuno di questi aspetti contribuisce al successo complessivo della foratura CNC e influenza la qualità finale e la funzionalità del pezzo. La rimozione dei trucioli è essenziale per mantenere l'efficienza del processo di foratura e prevenire i danni agli utensili. La foratura è il fulcro delle operazioni di foratura CNC, in quanto crea fori cilindrici in vari materiali.
Il diametro della punta e il diametro della punta sono fondamentali per determinare le dimensioni e la profondità dei fori praticati. La controforatura crea un foro a gradini che consente agli elementi di fissaggio di posizionarsi a filo con la superficie del pezzo. Per le varie applicazioni si utilizzano macchine di foratura diverse, come le presse per trapani a CNC verticali e i trapani a CNC a braccio radiale. La foratura a becco migliora l'evacuazione dei trucioli e il flusso del refrigerante durante le operazioni di foratura profonda. Le applicazioni di foratura profonda utilizzano spesso punte paraboliche e punte a cannone per realizzare fori profondi e garantire un'efficace evacuazione dei trucioli.

Per ottimizzare il processo di foratura CNC, i progettisti devono considerare vari fattori, come le superfici di ingresso e di uscita della punta, la rettilineità del foro, il gioco del truciolo, il design del prodotto filettato, la forma del foro e il layout generale del pezzo. Ognuno di questi aspetti contribuisce al successo complessivo della foratura CNC e influenza la qualità finale e la funzionalità del pezzo.
Avviate il vostro progetto di produzione con MakerVerse
MakerVerse è una piattaforma per l'approvvigionamento di componenti industriali. Offre un accesso immediato a una catena di fornitura verificata e a una gamma completa di tecnologie di produzione. Grazie a quotazioni, gestione degli ordini e adempimenti basati sull'intelligenza artificiale, MakerVerse aiuta a gestire tutto, dai prototipi iniziali alla produzione su larga scala.
Suggerimenti generali per il design
1. La superficie di ingresso del trapano deve essere perpendicolare alla punta del trapano per evitare problemi di avviamento e per garantire che il foro si trovi nella posizione corretta, come nella foto qui sotto.

Anche la superficie di uscita della punta dovrebbe essere perpendicolare all'asse della punta per evitare problemi di rottura quando la punta lascia il lavoro, come mostrato di seguito.
Superficie di uscita della foratura CNC
2. Se la rettilineità del foro finito è particolarmente critica, è meglio evitare tagli interrotti. Si verificherà una certa deviazione se la punta interseca un'altra apertura su un lato. Anche quando la rettilineità non è fondamentale, il punto centrale della punta deve rimanere nel materiale per tutta la durata del taglio per evitare una deviazione estrema e la possibile rottura della punta.
3. Consentire il gioco del truciolo con le filettature interne. I fori passanti sono preferibili ai fori ciechi per la maggiore facilità di passaggio degli utensili e dei trucioli, soprattutto quando sono necessarie operazioni secondarie come l'alesatura o la maschiatura.

4. Accorciare i fili. I primi quattro tiri assorbono la maggior parte del carico. È possibile risparmiare questo spazio se non si dispone di un carico calcolato definito. Se non si conosce il passo, tutto ciò che è più lungo del diametro non è necessario.
5. I prodotti filettati devono essere progettati con uno smusso alle estremità delle filettature esterne. e una svasatura alle estremità delle filettature interne. Queste superfici inclinate impediscono la formazione di filetti alettati alle estremità, contribuiscono a ridurre al minimo le bave e aiutano l'utensile di filettatura a tagliare o formare i filetti.
Progettazione di fori
6. La forma del fondo dei fori ciechi dovrebbe essere quello realizzato da una punta standard, come mostrato nell'immagine sottostante. Quando sono richiesti fori a fondo piatto, utilizzare una punta standard (118° o 140° con l'acciaio inox).
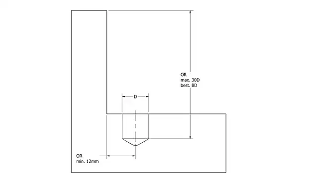
7. Evitare buche profonde (oltre 8 volte il diametro). a causa dei problemi di evacuazione dei trucioli e delle possibili deviazioni dalla rettilineità. Le punte speciali presenti sul mercato possono raggiungere 40 volte il diametro con prezzi intorno ai 150-400€; evitatele.
8. Evitare di progettare parti con fori minuscoli se le dimensioni ridotte non sono necessarie per l'applicazione del pezzo. Questo perché le punte piccole sono più soggette a rotture. Un diametro di circa 3 mm è un minimo auspicabile per una produzione conveniente.
9. Utilizzare coordinate rettangolari anziché angolari per indicare la posizione dei fori sui pezzi fresati. Per il macchinista è più facile e più sicuro tracciare il pezzo o un'attrezzatura per la foratura. Per i pezzi di tornitura, il centro del pezzo è l'origine naturale delle misure.
10. Progettare i pezzi in modo che tutti i fori possano essere eseguiti dal minor numero di lati. - idealmente solo su un lato. In questo modo si semplifica l'attrezzaggio e si riducono i tempi di lavorazione.
11. Standardizzare le dimensioni dei fori, degli elementi di fissaggio e delle altre filettature delle viti. il più possibile per ridurre al minimo il numero di mandrini e di sostituzioni.
12. Lasciare spazio per l'utensile di foratura. Il produttore ha bisogno di spazio o di accesso dalla parte superiore della parete più vicina o della distanza tra il portautensili e la parete più vicina. Ciò significa avere un centro di foratura di 12 mm rispetto alla parete o alla profondità di foratura, più una parete inferiore a 8 volte il diametro del foro.
13. Evitare l'intersezione di fori perforati e alesati. per prevenire la rottura degli utensili e i problemi di rimozione delle bave.
14. Se un foro cieco deve essere alesato, la buona prassi prevede una profondità di foratura maggiore per lasciare spazio ai trucioli. Il foro alesato deve essere progettato in base alle indicazioni del specifiche dei produttori di strumenti. La tabella collegata mostra l'offset per l'alesatura.
Processo di foratura CNC
Il processo di foratura CNC prevede diverse fasi, dalla progettazione e pianificazione alla foratura vera e propria e al controllo qualità. Ecco una panoramica del processo:
- Progettazione e pianificazione: La prima fase del processo di foratura CNC consiste nella progettazione del pezzo e nella pianificazione delle operazioni di foratura. Ciò comporta la creazione di un modello CAD dettagliato del pezzo, specificando le posizioni, le dimensioni e le profondità dei fori da praticare. La progettazione deve anche considerare fattori quali le proprietà del materiale, le superfici di ingresso e di uscita della punta e lo spazio per il truciolo.
- Programmazione: Una volta completata la progettazione, il passo successivo è la programmazione della macchina CNC. Si tratta di creare una serie di istruzioni, note come codice G, che la macchina CNC seguirà per eseguire le operazioni di foratura. Il codice G specifica le coordinate, le velocità di avanzamento, le velocità del mandrino e altri parametri necessari per una foratura precisa.
- Impostazione: La fase di impostazione prevede la preparazione della macchina CNC per l'operazione di foratura. Ciò include il fissaggio del pezzo da lavorare, l'installazione delle punte appropriate e la configurazione delle impostazioni della macchina in base alle istruzioni programmate. Una corretta impostazione è fondamentale per garantire la precisione e prevenire gli errori durante il processo di foratura.
- Perforazione: Con la macchina impostata e programmata, può iniziare il processo di foratura vero e proprio. La macchina CNC segue le istruzioni programmate per eseguire i fori nelle posizioni, alle profondità e agli angoli specificati. La precisione e l'automazione della macchina garantiscono risultati coerenti e accurati, anche per operazioni di foratura complesse.
- Controllo di qualità: Al termine dell'operazione di foratura, la fase finale è il controllo di qualità. Si tratta di ispezionare i fori praticati per verificare che siano conformi alle tolleranze e agli standard di qualità specificati. Eventuali deviazioni o difetti vengono identificati e corretti per garantire che il pezzo finale sia conforme alle specifiche richieste.
Seguendo questi passaggi, è possibile garantire un processo di foratura CNC fluido ed efficiente, ottenendo pezzi di alta qualità che soddisfano i requisiti di progettazione.
Come iniziare con una foratura CNC
Progettare per il CNC La perforazione è un delicato equilibrio tra conoscenze tecniche e applicazione pratica.
Seguendo questi suggerimenti generali per la progettazione e le considerazioni sulla progettazione dei fori, è possibile ottimizzare il processo di produzione, riducendo il rischio di errori, rotture e costi inutili. Ricordate che, sebbene questi suggerimenti siano linee guida per le migliori pratiche, ogni progetto presenta sfide uniche. Cercate la standardizzazione, ma siate pronti ad adattarvi se necessario.
Il successo nella foratura CNC dipende tanto dalla pianificazione e dalla progettazione quanto dall'esecuzione. Se avete dei dubbi, MakerVerse è qui per aiutarvi. Potete caricare i vostri progetti, ottenere preventivi per i vostri pezzi e lavorare con i nostri esperti per garantire il successo del vostro progetto. Pronti a iniziare?









